Arquitectura en escuela de artes escénicas
Proyecto:
Adaptación de local comercial a Escuela de Artes Escénicas
Ubicación: Las Rozas, Madrid
Superficie: 198 m²
Año Proyecto: 2022
Ver más información del proyecto
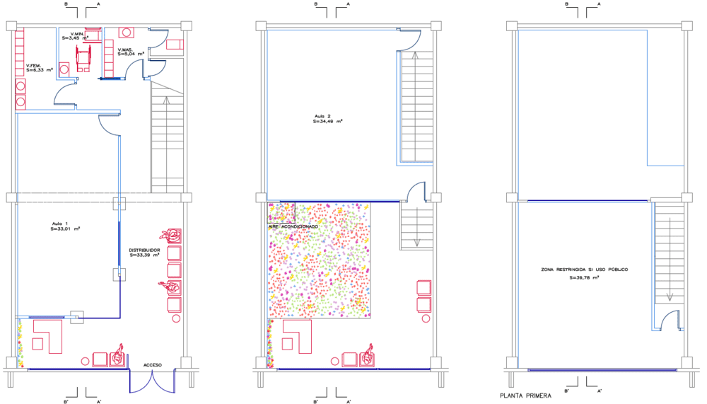
El proyecto consiste en la adaptación de un local existente a su uso como academia de artes escénicas.
El local tiene tres niveles sobre rasante, planteando la fachada por el frente del inmueble donde se ubica.
La adaptación del local a escuela de artes escénicas requiere una intervención detallada y cuidadosa, utilizando en ello materiales con altas capacidades de aislamiento acústico para evitar interacciones sonoras entre las distintas aulas así como reverberaciones, lo que condiciona el diseño de los diferentes espacios.
Se crea una amplia sala de danza en planta baja y una zona de acceso al fondo del local, donde se situarán dos vestuarios y dos baños, uno de ellos adaptado a minusválidos.
En las plantas superiores se proyectan dos aulas más, dejando una amplia abertura que permita el paso de luz natural.











